PROJET EN COURS

Agrandissement et réaménagement d’une maison en pierre
Saint-Gence 2025

Croquis d’ambiance illustrant l’entrée avec escalier en tronc d’arbre, filet suspendu et sol en travertin opus, mélangeant authenticité et modernité.

Des murs bruts, des idées nettes !

Les propriétaires avaient le charme de la pierre, il leur fallait encore trouver l’agencement et la cohérence.

Les planches de croquis

 

Planche d’ambiance montrant l'entrée avec escalier en tronc de bois brut et un espace détente avec claustra ajouré et végétation.

PLANCHE D’ESQUISSE – entrée et coin détente

Planche d’esquisse présentant deux propositions d’aménagement de cuisine, avec vitrail rétroéclairé.

PLANCHE D’ESQUISSE – 2 versions de cuisine

Planche d’ambiance présentant une chambre avec mur décoratif, une salle d’eau avec baignoire et douche, et une buanderie avec rangements fonctionnels.

PLANCHE D’ESQUISSE – espace nuit

Le projet

Le projet vise à agrandir et complètement réaménager cette maison de taille modeste en exploitant une partie de la grange attenante, en transformant le garage en espace habitable et en surélevant un petit volume en pierre. Les nouveaux propriétaires, qui viennent d’acquérir ce bien, ont entamé eux-mêmes des travaux de gros œuvre. Mais au fil de l’avancement du chantier, il est devenu difficile pour eux de se projeter et de garder une vision claire de l’ensemble.

Ils ont alors fait appel à nous pour une mission simple mais essentielle : apporter un regard global et concevoir un aménagement cohérent.

Une maison de caractère à réinventer

Notre mission ne se limite pas à dessiner des plans. Elle consiste à analyser les contraintes techniques existantes – humidité, isolation, gestion des volumes – et à proposer des solutions concrètes et réalisables. Nous travaillons aussi sur la lumière, la circulation et l’équilibre entre espaces ouverts et espaces intimes, afin de donner à la maison une vision d’ensemble cohérente et un confort durable.

Nous avons également pensé une rénovation énergétique, tout en conservant au maximum des murs en pierres apparentes afin de préserver le charme authentique du bâti. Cela inclut la mise en place d’un plancher chauffant dans certaines pièces et l’installation d’un poêle à bois central, garantissant chaleur et convivialité. Un travail particulier est aussi mené sur le traitement de l’humidité afin d’assainir durablement les espaces et d’assurer la pérennité des interventions.

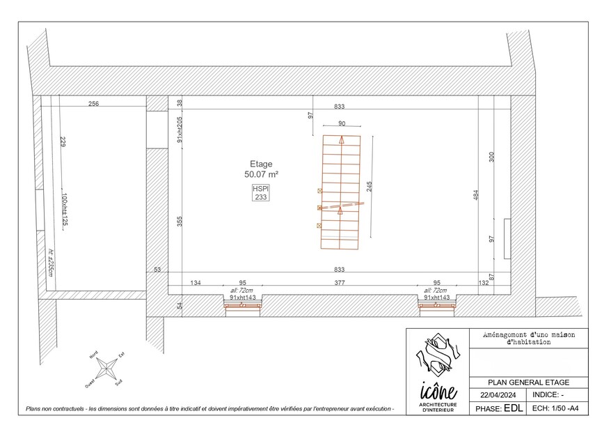
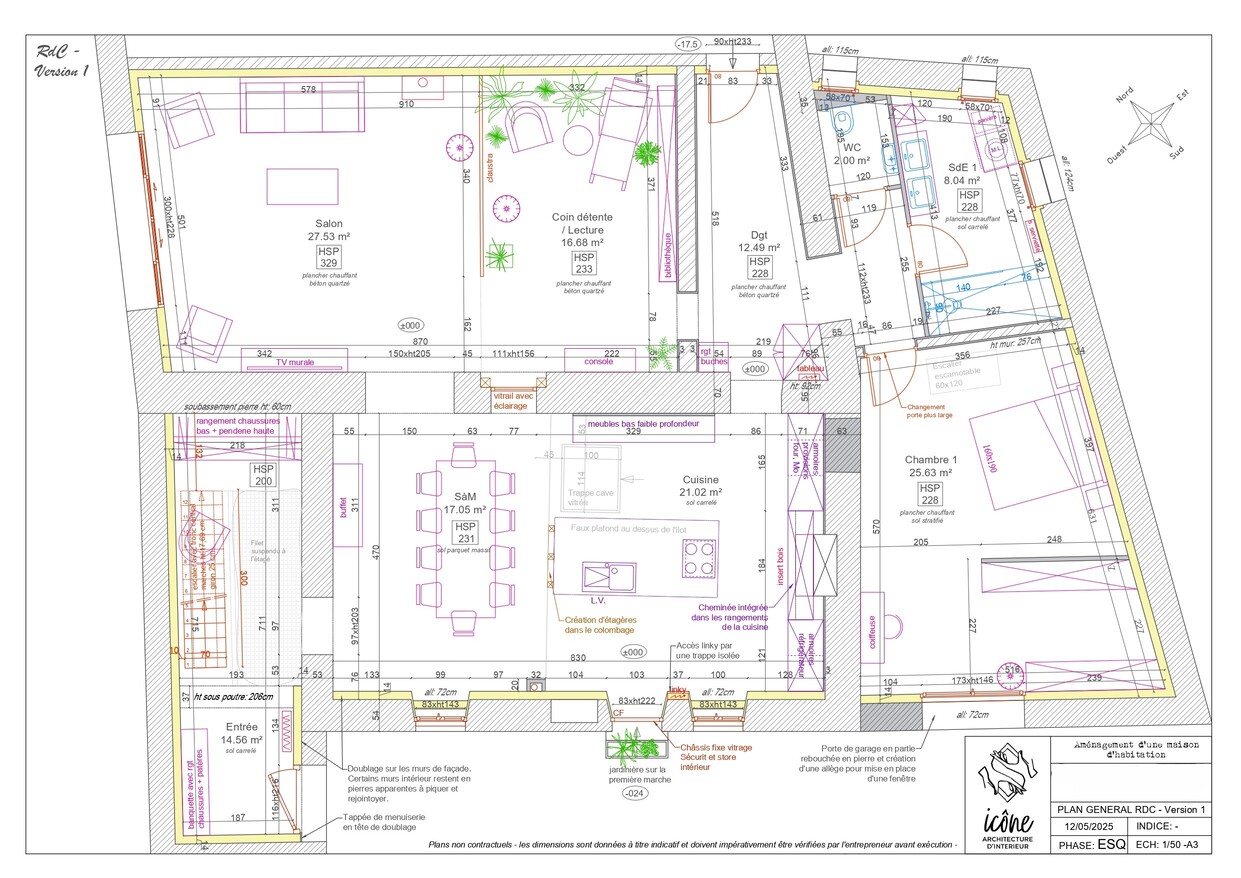
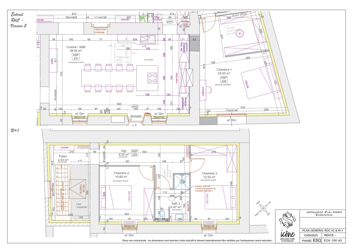
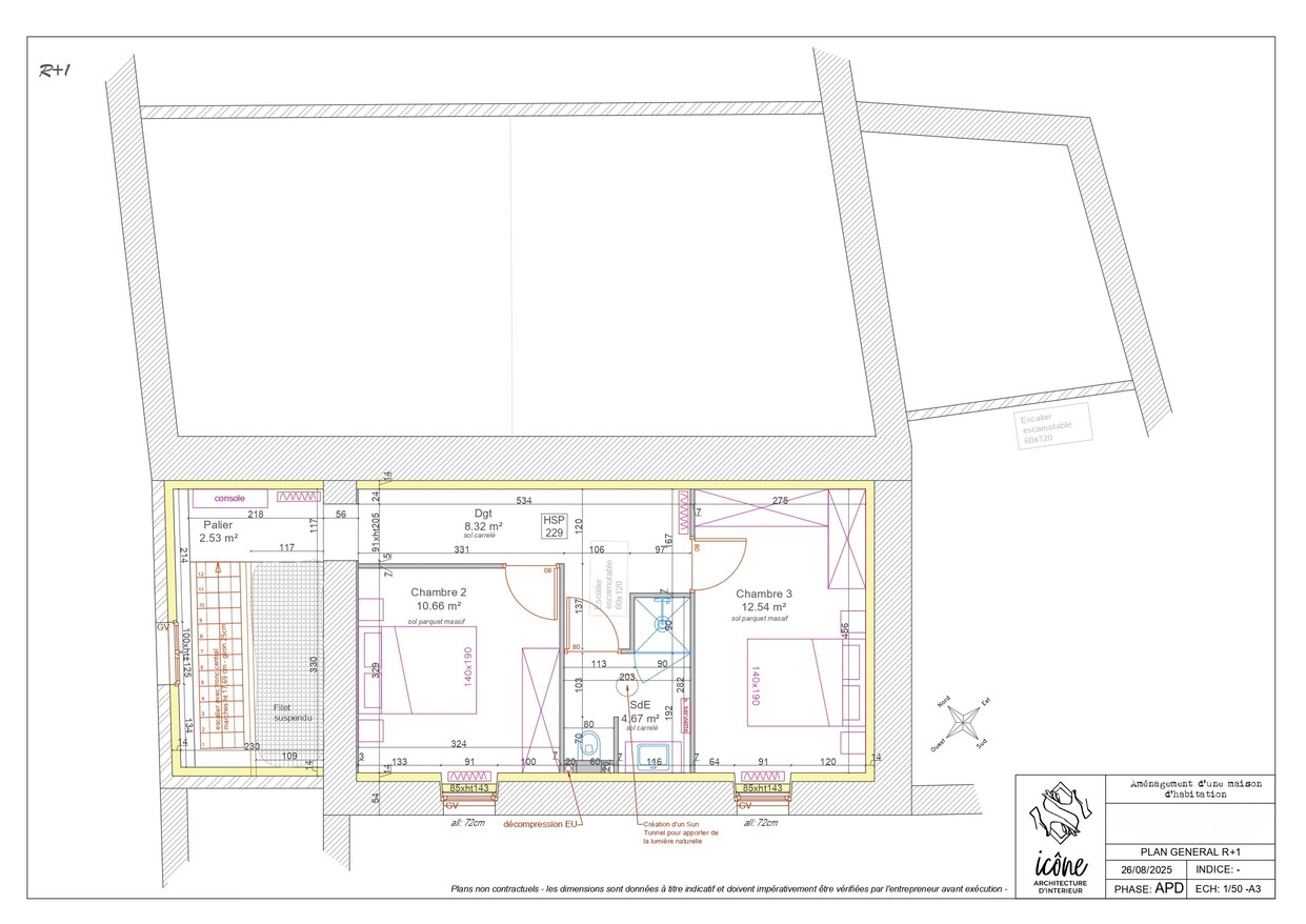
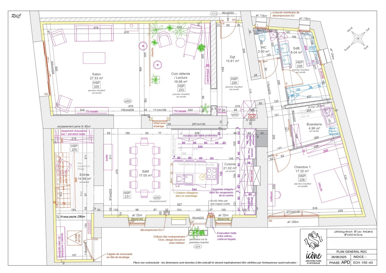
PLANS D’AVANT PROJET DÉFINITIF

Une ambiance nature brute

L’identité du projet s’appuie sur une esthétique « campagne chic » et nature brute. L’escalier en tronc d’arbre, le filet suspendu, les pierres et bois apparents, ainsi que l’intégration de la végétation conjugue authenticité et confort contemporain. Cette atmosphère s’exprime également dans les choix de matériaux durables. La rénovation vise à préserver le caractère vivant et chaleureux du lieu tout en l’adaptant aux usages actuels. Les espaces créés invitent à la simplicité, à la convivialité et au lien avec la nature, en écho au mode de vie des habitants.

Avec ce projet, l’architecture d’intérieur devient le trait d’union entre mémoire et modernité. Ici, l’existant est respecté, les contraintes techniques transformées en atouts, et chaque choix contribue à créer un lieu chaleureux, durable et profondément habité.

Les photos d’état des lieux

La maison existante après démolition

Les annexes en travaux pour agrandir la surface habitable

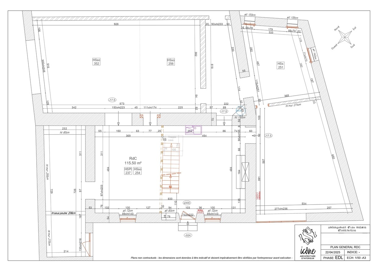
PLANS D’ÉTAT DES LIEUX

PROJET EN COURS

Agrandissement et réaménagement d’une maison en pierre
Saint-Gence 2025

Croquis d’ambiance illustrant l’entrée avec escalier en tronc d’arbre, filet suspendu et sol en travertin opus, mélangeant authenticité et modernité.

Des murs bruts, des idées nettes !

Les propriétaires avaient le charme de la pierre, il leur fallait encore trouver l’agencement et la cohérence.

Le projet

Le projet vise à agrandir et complètement réaménager cette maison de taille modeste en exploitant une partie de la grange attenante, en transformant le garage en espace habitable et en surélevant un petit volume en pierre. Les nouveaux propriétaires, qui viennent d’acquérir ce bien, ont entamé eux-mêmes des travaux de gros œuvre. Mais au fil de l’avancement du chantier, il est devenu difficile pour eux de se projeter et de garder une vision claire de l’ensemble.

Ils ont alors fait appel à nous pour une mission simple mais essentielle : apporter un regard global et concevoir un aménagement cohérent.

Les planches de croquis

 

Planche d’ambiance montrant l'entrée avec escalier en tronc de bois brut et un espace détente avec claustra ajouré et végétation.

PLANCHE D’ESQUISSE – entrée et coin détente

Planche d’esquisse présentant deux propositions d’aménagement de cuisine, avec vitrail rétroéclairé.

PLANCHE D’ESQUISSE – 2 versions de cuisine

Planche d’ambiance présentant une chambre avec mur décoratif, une salle d’eau avec baignoire et douche, et une buanderie avec rangements fonctionnels.

PLANCHE D’ESQUISSE – espace nuit

Une maison de caractère à réinventer

Notre mission ne se limite pas à dessiner des plans. Elle consiste à analyser les contraintes techniques existantes – humidité, isolation, gestion des volumes – et à proposer des solutions concrètes et réalisables. Nous travaillons aussi sur la lumière, la circulation et l’équilibre entre espaces ouverts et espaces intimes, afin de donner à la maison une vision d’ensemble cohérente et un confort durable.

Nous avons également pensé une rénovation énergétique, tout en conservant au maximum des murs en pierres apparentes afin de préserver le charme authentique du bâti. Cela inclut la mise en place d’un plancher chauffant dans certaines pièces et l’installation d’un poêle à bois central, garantissant chaleur et convivialité. Un travail particulier est aussi mené sur le traitement de l’humidité afin d’assainir durablement les espaces et d’assurer la pérennité des interventions.

PLANS D’AVANT PROJET DÉFINITIF

Une ambiance nature brute

L’identité du projet s’appuie sur une esthétique « campagne chic » et nature brute. L’escalier en tronc d’arbre, le filet suspendu, les pierres et bois apparents, ainsi que l’intégration de la végétation conjugue authenticité et confort contemporain. Cette atmosphère s’exprime également dans les choix de matériaux durables. La rénovation vise à préserver le caractère vivant et chaleureux du lieu tout en l’adaptant aux usages actuels. Les espaces créés invitent à la simplicité, à la convivialité et au lien avec la nature, en écho au mode de vie des habitants.

Avec ce projet, l’architecture d’intérieur devient le trait d’union entre mémoire et modernité. Ici, l’existant est respecté, les contraintes techniques transformées en atouts, et chaque choix contribue à créer un lieu chaleureux, durable et profondément habité.

Les photos d’état des lieux

La maison existante après démolition

Les annexes en travaux pour agrandir la surface habitable

PLANS D’ÉTAT DES LIEUX