PROJET EN COURS

Réaménagement d’un appartement à colombage, Limoges 2025 – Phase 1

Croquis d’ambiance illustrant l’entrée avec escalier en tronc d’arbre, filet suspendu et sol en travertin opus, mélangeant authenticité et modernité.

Un projet qui reprend son aplomb !

Une transformation pensée en plusieurs phases, où chaque étape prépare la suivante.

Les planches de croquis

 

Planche d’aménagement de l’entrée montrant les perspectives du futur espace, la banquette intégrée, les rangements sur mesure, les patères et les teintes choisies. Le document présente également le faux plafond peint, la transition de sols avec le parquet et les références de matériaux pour définir une entrée fonctionnelle et accueillante.

PLANCHE D’AMÉNAGEMENT – entrée

Planche d'aménagement de la salle d’eau comprenant plusieurs vues en perspective, l’organisation du lavabo, de la douche et des rangements. Le document présente les matériaux : carrelage effet pierre, zelliges vert turquoise, meuble vasque bois et équipements.

PLANCHE D’AMÉNAGEMENT – salle d’eau

Planche d’aménagement regroupant les vues en perspective du salon avec le coin cheminée réaménagé, les détails de la buanderie avec étendoirs muraux et rangements, ainsi que la sélection de matériaux et équipements pour le WC. L’ensemble présente les intentions esthétiques et fonctionnelles des phases futures du projet.

PLANCHE D’AMÉNAGEMENT – salon, buanderie & WC

Le projet

Au cœur d’un immeuble à pans de bois de l’hypercentre de Limoges, cet appartement porte le charme de l’ancien, mais aussi les traces de son histoire : une façade qui s’affaisse et déforme les planchers, des murs irréguliers et une organisation intérieure devenue incohérente.

Pour retrouver cohérence et confort, l’ensemble du niveau inférieur de l’appartement est repensé dans sa globalité. Les usages, les circulations et les contraintes structurelles et techniques sont étudiés afin de construire une vision durable. Cette approche permet d’organiser les travaux en plusieurs phases adaptées au rythme des propriétaires.

Les enjeux et intentions

Le défi consiste à recréer un équilibre entre l’identité du bâti ancien et les besoins contemporains. L’entrée manque d’espace, la salle d’eau et le WC/buanderie sont mal positionnés et peu pratique, la cuisine est trop étroite, et des zones de passage inutiles se succèdent.
L’enjeu est de rendre au lieu une logique d’usage claire et de redonner à chaque pièce un rôle précis.

La future organisation vise des espaces confortables et lumineux, avec une entrée accueillante, une salle d’eau repositionnée pour gagner en fonctionnalité et un WC/buanderie séparés et repensés pour optimiser les usages quotidiens.

Dans cette vision d’ensemble, la cuisine tient un rôle central : elle conditionne l’organisation du reste de l’étage.

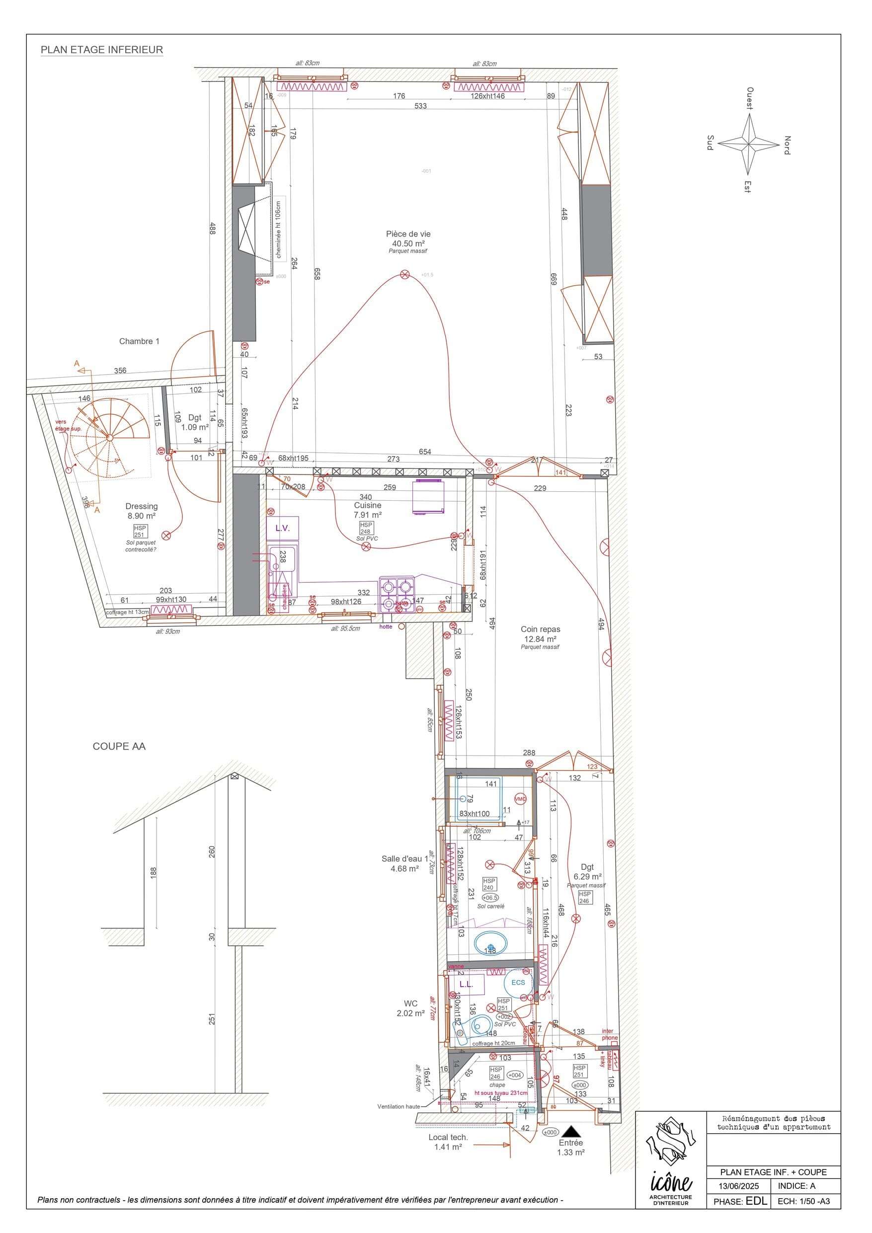
Plan général du niveau inférieur de l'appartement montrant l’implantation définitive des pièces : cuisine, coin repas, salle d’eau, WC, entrée, buanderie.Plan général du niveau inférieur de l'appartement montrant l’implantation définitive des pièces : cuisine, coin repas, salle d’eau, WC, entrée, buanderie.

PLANS D’ETAT DES LIEUX & PROJET DÉFINITIF

Phase 1 – La cuisine comme point de départ

La transformation commence par la cuisine, espace le plus contraint mais aussi celui qui influence l’ensemble du niveau.
La pièce retrouve une géométrie plus juste : les volumes s’ouvrent, les transitions entre coin repas et cuisine se clarifient.

La nouvelle identité de la cuisine s’appuie sur un jeu de couleurs enveloppant et sur une transition soignée entre les sols et les plafonds, créant un ensemble chaleureux et structuré.

Cette première phase intègre également le placard technique des communs dans l’appartement, opération essentielle pour préparer les étapes futures.

Planche d’ambiance de la future cuisine présentant les vues en perspective, le claustra, les teintes terracotta, le plancher bois, le carrelage graphique en biais et les matériaux majeurs du projet. Le document illustre la transition entre la cuisine et le coin repas ainsi que les choix et atmosphère de la première phase de rénovation.

PLANCHE D’AMBIANCE – cuisine

Ouverture du local technique dans l’entrée de l’appartement

Les photos des travaux en cours

Ouverture du mur entre la cuisine et le coin repas

Dépose des meubles et reprise des murs de la cuisine

Données techniques de la phase 1

  • Surface concernée : environ 12 m²
  • Coût des travaux HT : environ 32 000 €
  • Durée des travaux : 3 mois
  • Corps de métiers intervenants :
    Démolition : entreprise HOZEX RENOVATION
    Charpente – Couverture : 2M MENUISERIE
    Menuiseries extérieures : entreprise OKNOPLAST
    Plâtrerie : entreprise HOZEX RENOVATION
    Plomberie : entreprise CCS
    Électricité – Ventilation : entreprise GREG ELEC
    Carrelage : entreprise HOZEX RENOVATION
    Peintures plafonds : entreprise HOZEX RENOVATION
    Cuisine aménagée : entreprise Cuisines AVIVA

Les phases suivantes

La suite du projet porte sur la transformation de l’entrée, la buanderie, les WC et la salle d’eau. Chaque étape s’appuie sur la conception globale réalisée en amont.

Pensé sur la durée, le projet évolue étape après étape.
La cuisine en constitue le premier socle ; les phases suivantes compléteront progressivement la transformation pour offrir un niveau harmonieux, fluide et adapté aux usages actuels.

Les photos d’état des lieux

La cuisine et le dressing

L’entrée, le local technique des communs et les WC/buanderie

PROJET EN COURS

Réaménagement d’un appartement à colombage, Limoges 2025 – Phase 1

Croquis d’ambiance illustrant l’entrée avec escalier en tronc d’arbre, filet suspendu et sol en travertin opus, mélangeant authenticité et modernité.

Un projet qui reprend son aplomb !

Une transformation pensée en plusieurs phases, où chaque étape prépare la suivante.

Le projet

Au cœur d’un immeuble à pans de bois de l’hypercentre de Limoges, cet appartement porte le charme de l’ancien, mais aussi les traces de son histoire : une façade qui s’affaisse et déforme les planchers, des murs irréguliers et une organisation intérieure devenue incohérente.

Pour retrouver cohérence et confort, l’ensemble du niveau inférieur de l’appartement est repensé dans sa globalité. Les usages, les circulations et les contraintes structurelles et techniques sont étudiés afin de construire une vision durable. Cette approche permet d’organiser les travaux en plusieurs phases adaptées au rythme des propriétaires.

Plan général du niveau inférieur de l'appartement montrant l’implantation définitive des pièces : cuisine, coin repas, salle d’eau, WC, entrée, buanderie.Plan général du niveau inférieur de l'appartement montrant l’implantation définitive des pièces : cuisine, coin repas, salle d’eau, WC, entrée, buanderie.

PLANS D’ETAT DES LIEUX & PROJET DÉFINITIF

Les enjeux et intentions

Le défi consiste à recréer un équilibre entre l’identité du bâti ancien et les besoins contemporains. L’entrée manque d’espace, la salle d’eau et le WC/buanderie sont mal positionnés et peu pratique, la cuisine est trop étroite, et des zones de passage inutiles se succèdent.
L’enjeu est de rendre au lieu une logique d’usage claire et de redonner à chaque pièce un rôle précis.

La future organisation vise des espaces confortables et lumineux, avec une entrée accueillante, une salle d’eau repositionnée pour gagner en fonctionnalité et un WC/buanderie séparés et repensés pour optimiser les usages quotidiens.

Dans cette vision d’ensemble, la cuisine tient un rôle central : elle conditionne l’organisation du reste de l’étage.

Les planches de croquis

 

Planche d’aménagement de l’entrée montrant les perspectives du futur espace, la banquette intégrée, les rangements sur mesure, les patères et les teintes choisies. Le document présente également le faux plafond peint, la transition de sols avec le parquet et les références de matériaux pour définir une entrée fonctionnelle et accueillante.

PLANCHE D’AMÉNAGEMENT – entrée

Planche d'aménagement de la salle d’eau comprenant plusieurs vues en perspective, l’organisation du lavabo, de la douche et des rangements. Le document présente les matériaux : carrelage effet pierre, zelliges vert turquoise, meuble vasque bois et équipements.

PLANCHE D’AMÉNAGEMENT – salle d’eau

Planche d’aménagement regroupant les vues en perspective du salon avec le coin cheminée réaménagé, les détails de la buanderie avec étendoirs muraux et rangements, ainsi que la sélection de matériaux et équipements pour le WC. L’ensemble présente les intentions esthétiques et fonctionnelles des phases futures du projet.

PLANCHE D’AMÉNAGEMENT – salon, buanderie & WC

Planche d’ambiance de la future cuisine présentant les vues en perspective, le claustra, les teintes terracotta, le plancher bois, le carrelage graphique en biais et les matériaux majeurs du projet. Le document illustre la transition entre la cuisine et le coin repas ainsi que les choix et atmosphère de la première phase de rénovation.

PLANCHE D’AMBIANCE – cuisine

Phase 1 – La cuisine comme point de départ

La transformation commence par la cuisine, espace le plus contraint mais aussi celui qui influence l’ensemble du niveau.
La pièce retrouve une géométrie plus juste : les volumes s’ouvrent, les transitions entre coin repas et cuisine se clarifient.

La nouvelle identité de la cuisine s’appuie sur un jeu de couleurs enveloppant et sur une transition soignée entre les sols et les plafonds, créant un ensemble chaleureux et structuré.

Cette première phase intègre également le placard technique des communs dans l’appartement, opération essentielle pour préparer les étapes futures.

Les photos des travaux en cours

Ouverture du mur entre la cuisine et le coin repas

Dépose des meubles et reprise des murs de la cuisine

Ouverture du local technique des communs dans l’entrée de l’appartement

Les phases suivantes

La suite du projet porte sur la transformation de l’entrée, la buanderie, les WC et la salle d’eau. Chaque étape s’appuie sur la conception globale réalisée en amont.

Pensé sur la durée, le projet évolue étape après étape.
La cuisine en constitue le premier socle ; les phases suivantes compléteront progressivement la transformation pour offrir un niveau harmonieux, fluide et adapté aux usages actuels.

Données techniques de la phase 1

  • Surface concernée : environ 12 m²
  • Coût des travaux HT : environ 32 000 €
  • Durée des travaux : 3 mois
  • Corps de métiers intervenants :
    Démolition : entreprise HOZEX RENOVATION
    Charpente – Couverture : 2M MENUISERIE
    Menuiseries extérieures : entreprise OKNOPLAST
    Plâtrerie : entreprise HOZEX RENOVATION
    Plomberie : entreprise CCS
    Électricité – Ventilation : entreprise GREG ELEC
    Carrelage : entreprise HOZEX RENOVATION
    Peintures plafonds : entreprise HOZEX RENOVATION
    Cuisine aménagée : entreprise Cuisines AVIVA

Les photos d’état des lieux

La cuisine et le dressing

L’entrée, le local technique des communs et les WC/buanderie